• Moorpark Avenue, Muirhead
  • Moorpark Avenue, Muirhead
  • Moorpark Avenue, Muirhead
  • Moorpark Avenue, Muirhead
  • Moorpark Avenue, Muirhead
  • Moorpark Avenue, Muirhead
  • Moorpark Avenue, Muirhead
  • Moorpark Avenue, Muirhead
  • Moorpark Avenue, Muirhead
  • Moorpark Avenue, Muirhead
  • Moorpark Avenue, Muirhead
  • Moorpark Avenue, Muirhead

Commercial property for auction
Moorpark Avenue, Muirhead

***GOING TO ONLINE AUCTION***

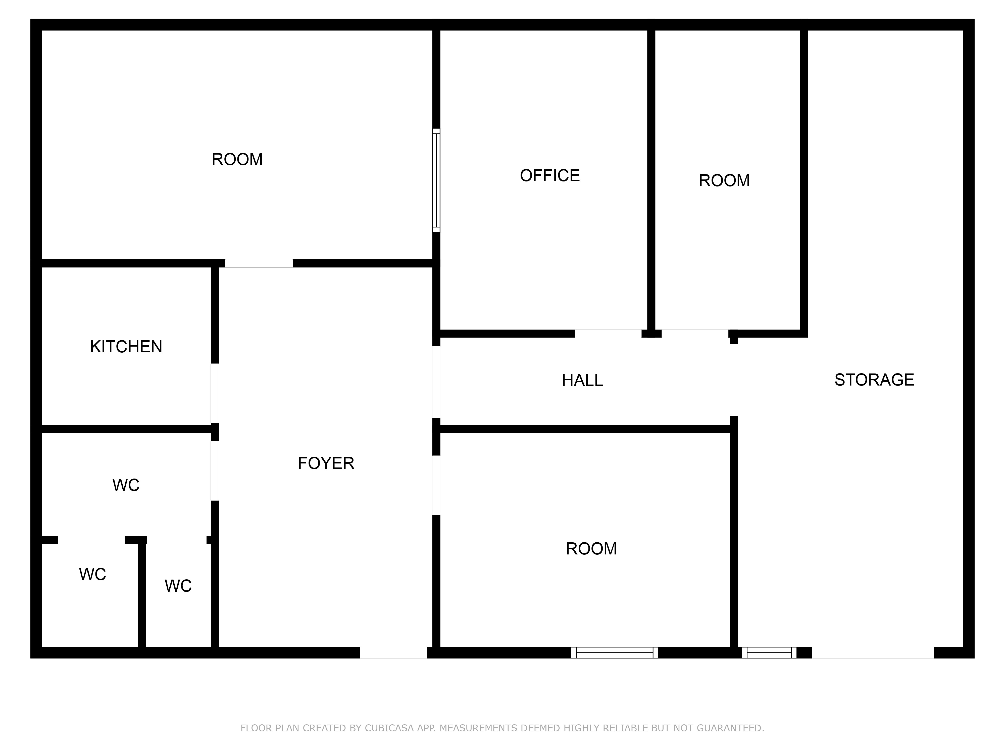
Brighton & Beck offer to online auction this generously sized commercial unit, set in the desired locale of Muirhead. The subjects comprise a detached single-storey office and workshop premises of traditional brick construction beneath a pitched profiled roof, externally finished in painted timber cladding with double-glazed uPVC windows. The accommodation extends to approximately 107.9 sq.m (1,161 sq.ft) and is arranged to provide three private offices, a store/workshop, kitchen, and WC facilities, presented to a reasonable decorative standard throughout. Heating is provided via a gas-fired central heating system with wall-mounted radiators, and the property benefits from a mono-blocked forecourt providing private parking directly to the front. The building offers flexible accommodation suitable for continued commercial use or conversion to alternative purposes, subject to the necessary consents, and is available with vacant possession on a heritable (freehold) basis.

Located within the well-established village of Muirhead, approximately seven miles north-east of Glasgow city centre, the property occupies a convenient and accessible position close to the A80 and M80 motorway network. The surrounding area is a popular residential and mixed-use location, with nearby amenities in both Muirhead and neighbouring Chryston, and rail connections available at Gartcosh, Lenzie, and Stepps. The subjects are well placed for commuting throughout the central belt, offering an attractive opportunity for owner-occupiers, investors, or developers seeking a compact, self-contained commercial building in a strong suburban location.


Features

  • Fantastic Commercial Opportunity,GIA 107.90 SQM,Highly Sought After Locale,Three Offices & Storeroom,Ample Parking to Front,Great Commercial Rental

Location

DON'T GET HAMMERED AT AUCTION. BUY FROM SOMEONE YOU CAN TRUST.... BRIGHTON & BECK

Important Note

The latest published guide price is shown on the website. The reserve price is the minimum price at which the property can be sold. The guide price given is the minimum price at which the seller might be prepared to sell on the date on which the guide price is published. Both the guide price and the reserve price may be subject to change up to and including the day of the auction. All guide prices are quoted "subject to contract". The reserve price may be greater than the previously quoted guide price. The guide price will be published online immediately it becomes available. Lots may be sold or withdrawn prior to auction. Auction properties are subject to a buyer’s premium of a minimum £4,000+VAT (£4,800) and Estate Agency properties are subject to a buyer’s premium of a minimum £1,500+VAT (£1,750). Any commercial sales are subject to a buyers premium of a minimum £5,000+VAT (£6,000) or 3%+VAT (Whichever is the greater). Each property listing provides the individual Buyers Premium, but for more Information on a properties Buyers Premium and any other related fees please feel free to speak to a member of the team.

Guide Price £48,000.00

  • 0
  • 1
  • 4

Please login to view auction details.

If you do not have an account register for free.

Floor plans

Free Valuation